Munkekærskolen

Projekttype:

Konkurrence

Beliggenhed:

Solrød Strand

År:

2025

Bygherre:

Solrød Kommune

Status:

Under opførelse

Samarbejdspartnere:

Torkil Laursen A/S og Store-Hedebyg Entreprise A/S

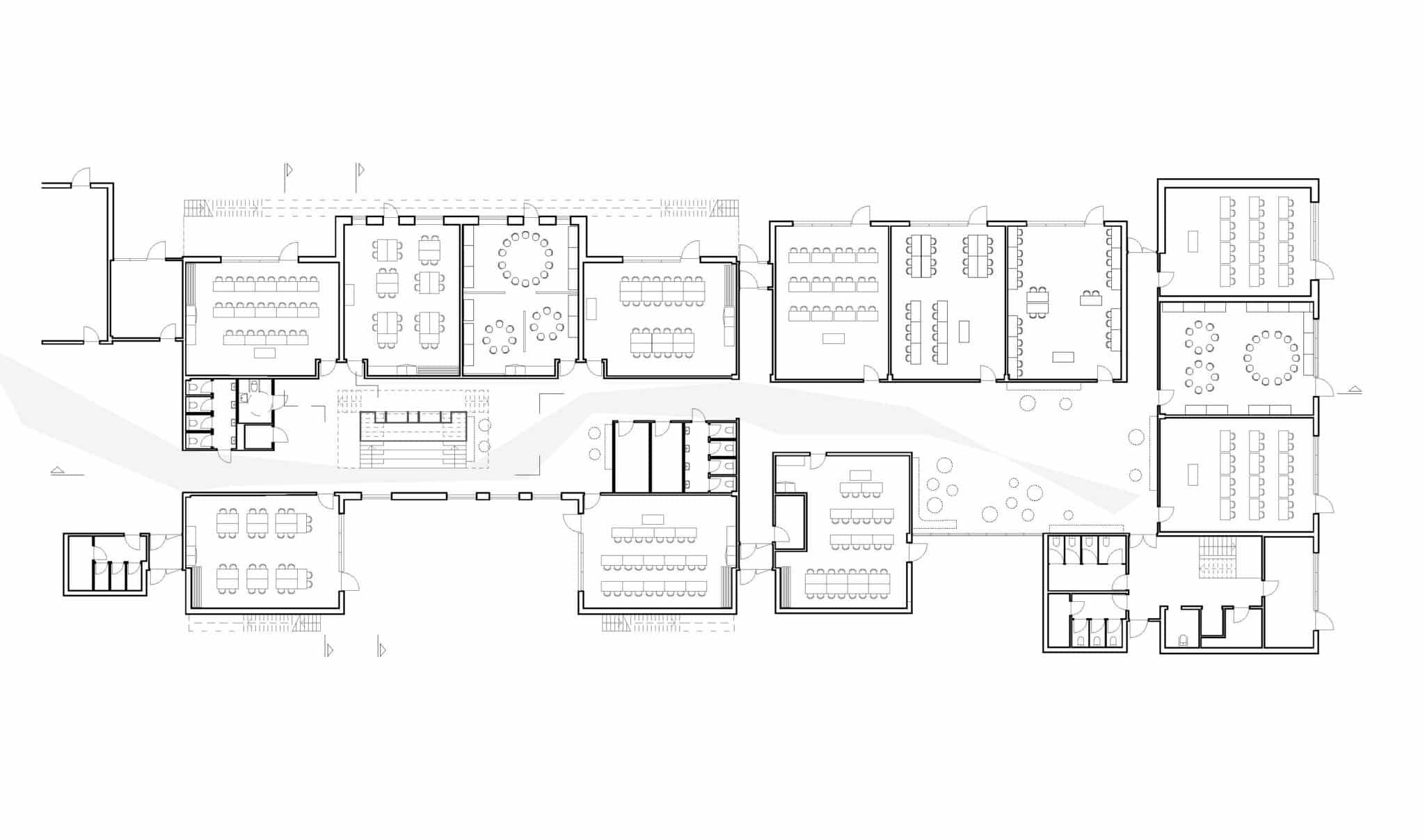
Med udgangspunkt i den eksisterende skoles skala, materialer og rumlige kvaliteter skaber vi en tilbygning, der understøtter et moderne og fleksibelt undervisningsmiljø, og som naturligt tilpasser sig mellem de eksisterende bygninger. Tilbygningen viderefører skolens materialitet og rytme og danner med sin hesteskoform et afgrænset uderum, hvor skolearbejde, socialt samvær og ophold kan foregå. Bygningen opføres i to plan og forbindes indvendigt af en stor læringstrappe, der fungerer som både opholdszone, undervisningsrum og samlingssted.

De eksisterende fællesområder i bygning C og D bindes sammen af et nyt fællesområde, der skaber et effektivt og inspirerende flow gennem komplekset. Forbindelsen danner fleksible og indbydende rum, som både understøtter den enkelte elev og samarbejde i grupper. Med de nye forbindelser i stueplan og via læringstrappen bliver bygningens rumlige sammenhæng styrket – både lodret og vandret.

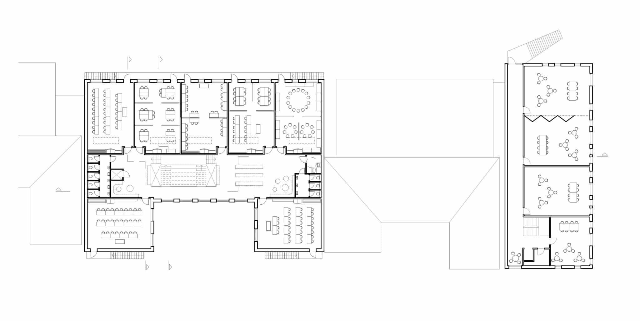
Lokalerne er organiseret i klynger på op til fem spor, så årgangene samles tæt på hinanden med adgang til fællesrum og læringszoner. Fællesområderne fungerer som forlængelser af undervisningslokalerne og rummer nicher, siddepladser og zoner til gruppearbejde eller individuelt fordybelsesarbejde. Elever i mellemtrin og udskoling bevæger sig mere selvstændigt og fleksibelt gennem skolen, og indretningen understøtter denne bevægelse og frihed. Alle nye lokaler er på 65 m² med direkte adgang til fællesområder og toiletter, hvilket der blev lagt vægt på i konkurrencen.

Fra bygning C bevæger man sig gennem et nyt fællesområde med kroge og læringszoner, videre gennem en smallere passage med toiletter og ind i et større fællesrum med den centrale læringstrappe. Herfra er der adgang til både gårdrum og klasselokaler i stueplan. Det grønne spor i gulvbelægningen markerer forbindelsen mellem de eksisterende og nye områder og fortsætter op ad læringstrappen til 1. sal, hvor det binder bygningens niveauer og identitet sammen.

Læringstrappen er bygningens hjerte. Den forbinder stueplan og 1. sal og skaber et centralt fællesrum med plads til undervisning, gruppearbejde og samlinger på tværs af klasser. Trappen har dobbelthøje trin til siddemuligheder, god akustik og et fast vægstykke med interaktiv tavle. I hver side er der udgang til det nye uderum med niveaufri adgang, så inde og ude kan bruges i sammenhæng.

På 1. sal åbner fællesområderne sig mod sydfacaden, hvor en balkon med store vinduer giver lys, udsyn og opholdsmuligheder. Trappeværnet er udformet med en fast plade nederst og åbne balustre øverst, så eleverne kan sidde op ad værnet, samtidig med at de har udsyn og kontakt til rummene omkring sig.

situationsplan 1-500-01